Siga nuestras redes sociales

Renovación del Cobertizo/ Bodega

30/05/2023 . Noticias

¡Queridos hermanos, Augusta Reina!

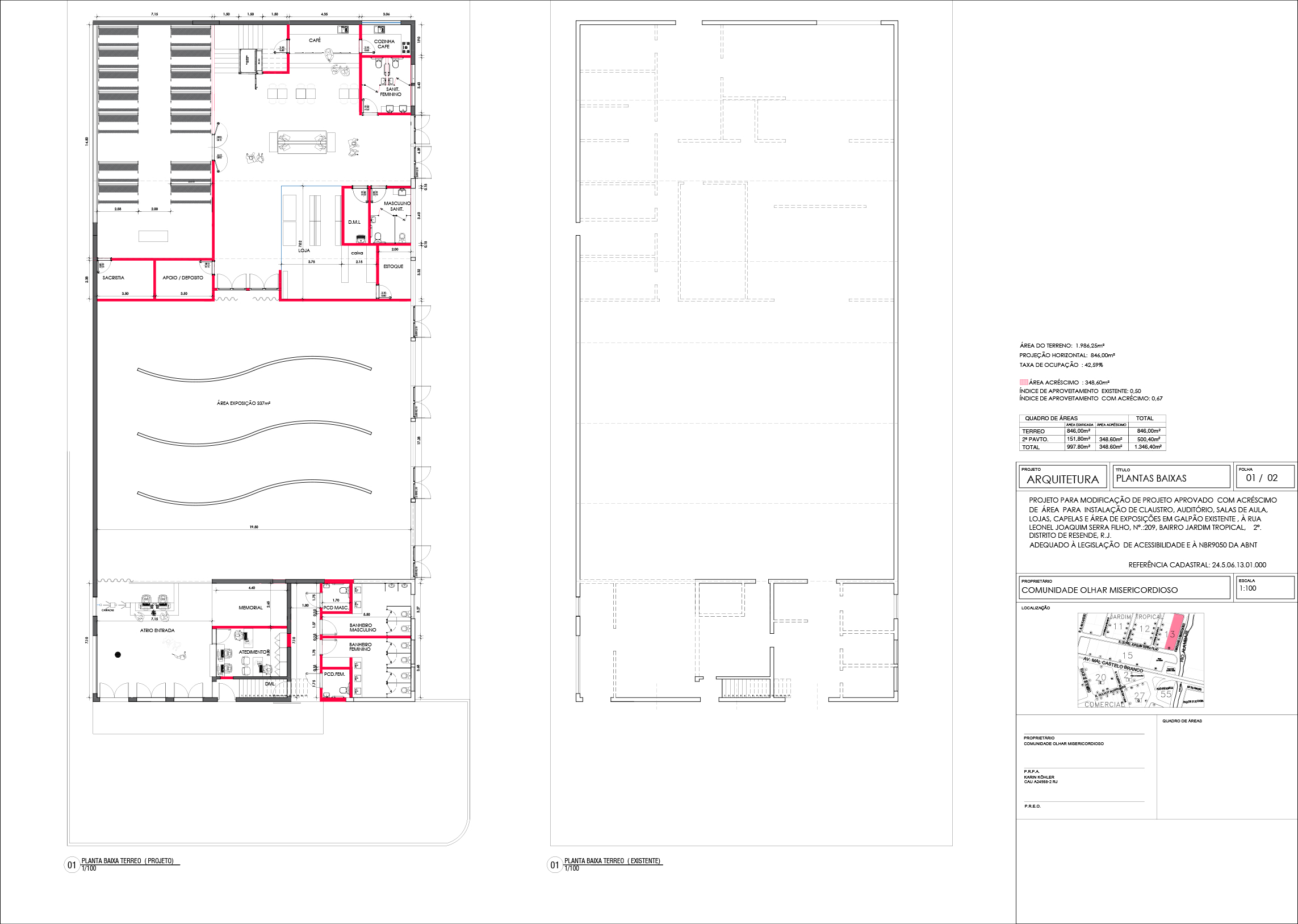
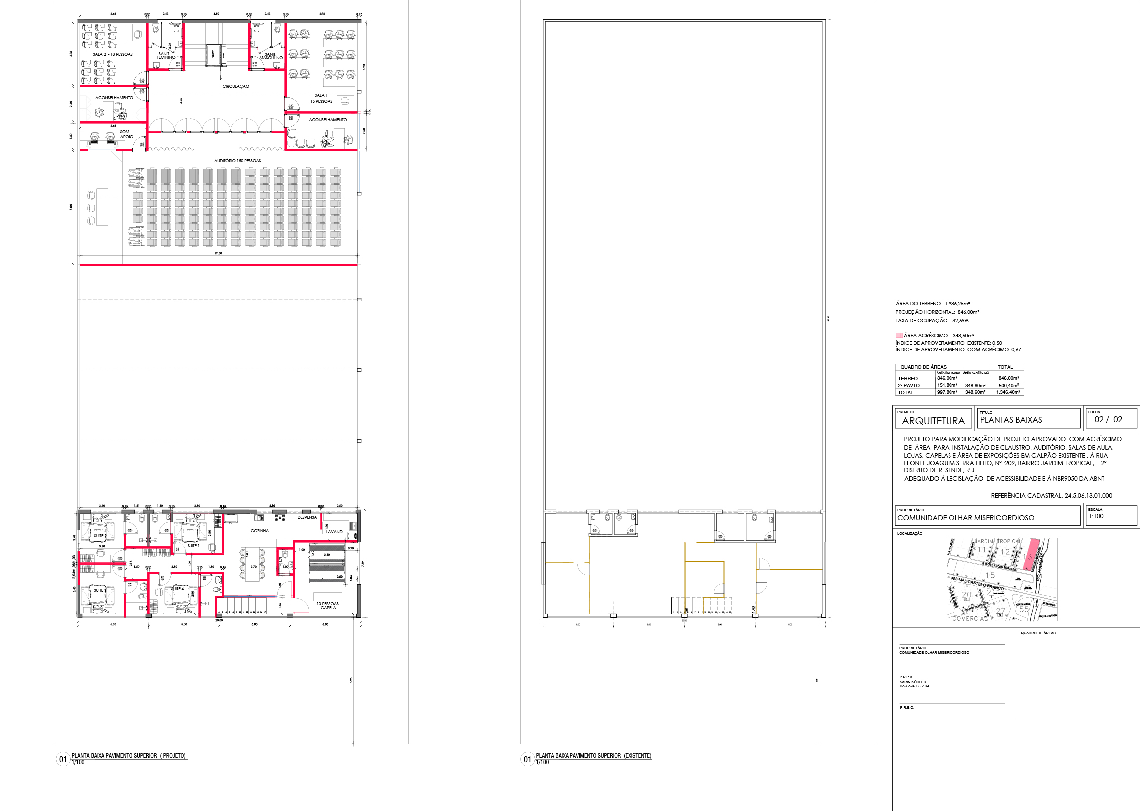
La historia de la Comunidad Olhar Misericordioso ha sido escrita con la “tinta de la Divina Providencia”, porque cada día, el Señor y la Virgen María, Madre de la Divina Providencia, nos conceden dones que confirman nuestro carisma y misión. Recientemente experimentamos esto de manera única, ya que recibimos una donación de una bodega en Resende (RJ).

En nuestro corazón estaba el deseo de tener un espacio de retiros y también de instalar la Exposición “¿Quién es el Hombre de la Sábana Santa?”, obra de misericordia de nuestra Comunidad, y grande fue nuestro gozo al contemplar que el lugar que fue donado para nosotros es ideal para esta necesidad!

Por todo esto, proclamamos: “¡Bendito sea Dios!”. Sin embargo, para hacer realidad este sueño, necesitamos renovar el cobertizo, y para eso necesitamos tu colaboración.

Como hacer tu donación:

Toda ayuda es bienvenida, haz tu donación vía paypal:

PayPal – Donar en línea Dona Online a través de la plataforma de PayPal. Simplemente haga clic en el siguiente enlace que está disponible en el sitio Web de la Comunidad.

 

 

 

Nuestro agradecimiento a Karin Kohler – Arquitecta de Interiores. ¡Reciba de antemano nuestra gratitud y oraciones! ¡Todo por Jesús, nada sin María!

PRÓXIMOS EVENTOS